Дом, Совхозная, 3 Показать на карте
Частое
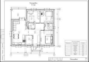
Продается дом в с. Частое - в живописном ближайшем пригороде г.Тула! Близость к природе - неоспоримое преимущество этого места! Из любого окна дома открывается отличный вид. Дом 1-этажный, площадь 146,6 кв.м. Проект дома авторский, в котором большое значение уделено грамотному функционалу и зонированию помещений. Планировка комфортная и продуманная. Много света и простора. Связующий элемент планировки - гостиная, из которой осуществляется выход на террасу.Благодаря обширному остеклению из данной комнаты можно любоваться березовой рощей на границе участка. Гостиная спроектирована таким образом, что её часть удобно обустроить под зимний сад, кабинет или спальню. Жилые комнаты расположены в правом и левом крыле дома. В одной из спален имеется своя гардеробная и санузел с окном. Всего в доме два санузла. Кухня обособлена от гостиной, благодаря чему рабочие поверхности и места хранения не будут бросаться в глаза вашим гостям. К кухне примыкает бойлерная, где уже установлено всё необходимое для жизни оборудование: электрический котел, бойлер, фильтр. Также в бойлерной установлены системы регулировки системой отопления, включая теплый пол. Теплый пол проложен во всех комнатах и помещениях дома. В окна вставлен трехкамерный ПВХ профиль REHAU с ламинацией с наружной стороны. Материал крыши - мягкая кровля. Водоснабжение дома осуществляется от собственной скважины, находящейся на участке. Электроснабжение - выделенная мощность 15 кВт в трехфазной сети.Канализация - два переливных колодца. Построен по каркасной технологии с соблюдением всех необходимых требований к строительству. Земельный участок правильной формы площадью 20 соток. В конце участка имеется своя небольшая березовая роща. Размеры и рельеф участка позволяет осуществить разные варианты ландшафтного дизайна территории и расположения на нем вспомогательных строений.Достаточно места для обустройства стоянки автомобилей. Один собственник.Все документы готовы. Быстрый выход на сделку.Дом продается практически по себестоимости строительства в связи с переездом. Оперативный показ дома в удобное время. Номер в базе: J2653
146 м2
1 этаж
- Показать контакты
- Добавить в избранное
146 м2
1 этаж
6 900 000
47 067 /м2
