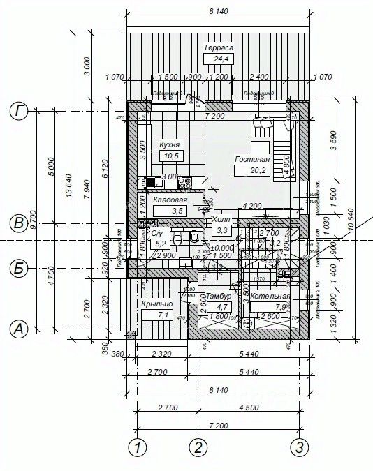
Продается не достроенный дом по проекту на участке 8 соток. Строили для себя, но жизненные планы изменились. Вся конструкция возведена по проекту:
- Фундамент: монолитный ЖБ ростверк толщиной 400 и 470мм из бетона М300, с армированием
- Стены несущие: газобетонный стеновой блок YTONG D500 B3.5 F100 с армирующей сеткой
- Междуэтажные перекрытия: монолитный ЖБ армопояс 250х250мм из бетона М300 В22,5 с армированием арматурой и монолитные ЖБ плиты толщиной 150мм из бетона М300 кл.В22,5 с армированной сеткой.
Дом находится в живописном и экологическом месте: 2 пруда для рыбалки и 1 пруд для купания, лес, охотничьи угодья, конный клуб, недалеко база отдыха. До центра Тулы - 18 км.


















