Если цена в объявлении изменится, мы сразу сообщим вам об этом на электронную почту.
Нажимая «Подписаться», вы соглашаетесь с правилами.
продам отдельностоящее здание, Ленина, 33а500 000 000 ₽
2 окт
Дата публикации объявления
Обн. вчера
Дата обновления объявления
11
Количество просмотров (+ просмотры за сегодня)
137 563 ₽/м²
Параметры
Общая площадь3634,7 м2
Этаж1
Назначение помещения
кафе, бар, ресторан, медицинский центр, стоматология, для работы с клиентами
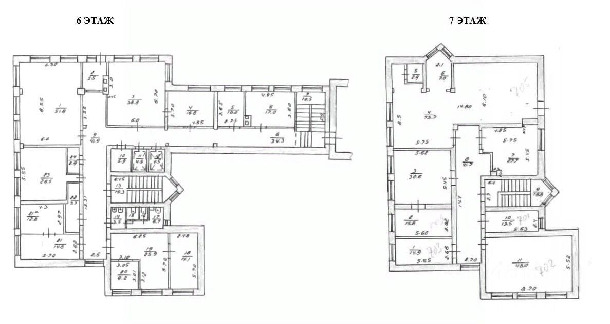
Предлагаются к продаже нежилые помещения общей площадью 3643,7 кв.м. (большая часть нежилого здания), расположенные на 1-7 этажах объекта недвижимости, расположенного по адресу: г. Тула, ул. Ленина, д.33а.
Этажность расположения:
Подвал 567,8 кв.м., кадастровый номер 71:30:050202:1493 1 этаж 330,2 кв.м., кадастровый номер 71:30:050202:2023 2 этаж 33,3 кв.м., кадастровый номер 71:30:050202:1491 3 этаж 749,7 кв.м., кадастровый номер 71:30:050202:1499 4 этаж 754,7 кв.м., кадастровый номер 71:30:050202:1497 5 этаж 508,9 кв.м., кадастровый номер 71:30:050202:1496 6 этаж 393,5 кв.м., кадастровый номер 71:30:050202:1498 7 этаж 296,6 кв.м.
Предлагаются к продаже нежилые помещения общей площадью 3643,7 кв.м. (большая часть нежилого здания), расположенные на 1-7 этажах объекта недвижимости, расположенного по адресу: г. Тула, ул. Ленина, д.33а.
Этажность расположения:
Подвал 567,8 кв.м., кадастровый номер 71:30:050202:1493 1 этаж 330,2 кв.м., кадастровый номер 71:30:050202:2023 2 этаж 33,3 кв.м., кадастровый номер 71:30:050202:1491 3 этаж 749,7 кв.м., кадастровый номер 71:30:050202:1499 4 этаж 754,7 кв.м., кадастровый номер 71:30:050202:1497 5 этаж 508,9 кв.м., кадастровый номер 71:30:050202:1496 6 этаж 393,5 кв.м., кадастровый номер 71:30:050202:1498 7 этаж 296,6 кв.м., кадастровый номер 71:30:050202:1495
Инженерные коммуникации в здании: все коммуникации (отопление, водоснабжение, канализация, электроснабжение).
Электричество - разрешенная мощность 90кВт. Отопление - от газовой котельной ПАО ''Ростелеком'' по адресу: г. Тула, пр. Ленина, д. 33.
Планировка помещений смешанная.
Здание находится на 1 линии, в Центральном районе города Тулы, на пересечении пр. Ленина и ул. Каминского, рядом с офисом ПАО ''Ростелеком'' и АО ''Почта России'', на расстоянии 700м от пл. Ленина. В ближайшей локации находится общественно-деловая застройка. Очевидными плюсами расположения предлагаемой коммерции являются: высокий пешеходный и автомобильный трафик, множество жилых зданий и действующих бизнес-центров, находящихся в непосредственной близости.
Учитывая характеристики земельного участка, строений, местоположение, плотность окружающей застройки, в том числе наличие элементов инженерной инфраструктуры или возможность подключения к ним, физически возможно разноплановое использование объекта недвижимости в том числе под офисы, медицинский центр, бизнесцентр, гостиничный и ресторанный бизнес и т.д.
Физические характеристики здания не накладывают ограничений на его использование.
Въезд на прилегающую к зданию дворовую территорию возможен как с улицы Тургеневская (существующий), так и с улицы Каминского либо со стороны Бухоновского переулка.
Земельный участок 2 099, кв.м., кадастровый номер 71:30:050202:2002.
Используется на праве аренды. К новому собственнику переходит право аренды земельного участка в том же объеме, с учетом площади продаваемых нежилых помещений.
! ОБРАТИТЕ ВНИМАНИЕ ! : Стоимость продажи объекта недвижимости является предварительной и будет уточнена после завершения внутрикорпоративных / административных мероприятий.
! ОБРАТИТЕ ВНИМАНИЕ ! : Существенное условие : Одновременно с заключением договора купли-продажи объектов недвижимости предусматривается заключение договора аренды (обратной) на время высвобождение площадей от оборудования и персонала Продавца (ПАО ''Ростелеком''). Площадь обратной аренды 2466,2 кв.м. (1,3,4,5,6,7 этажи), срок аренды до 24 месяцев.