Если цена в объявлении изменится, мы сразу сообщим вам об этом на электронную почту.
Нажимая «Подписаться», вы соглашаетесь с правилами.
продам дом, Плеханово, 723 700 000 ₽
23 дек
Дата публикации объявления
Обн. 27 мар
Дата обновления объявления
2
Количество просмотров (+ просмотры за сегодня)
55 639 ₽/м²
Чистая продажа
Термин "Чистая продажа" означает, что в квартире никто не прописан или
есть куда выписаться и вывезти вещи. Это лучший вариант для покупателя.
Вероятность срыва сделки минимальна.
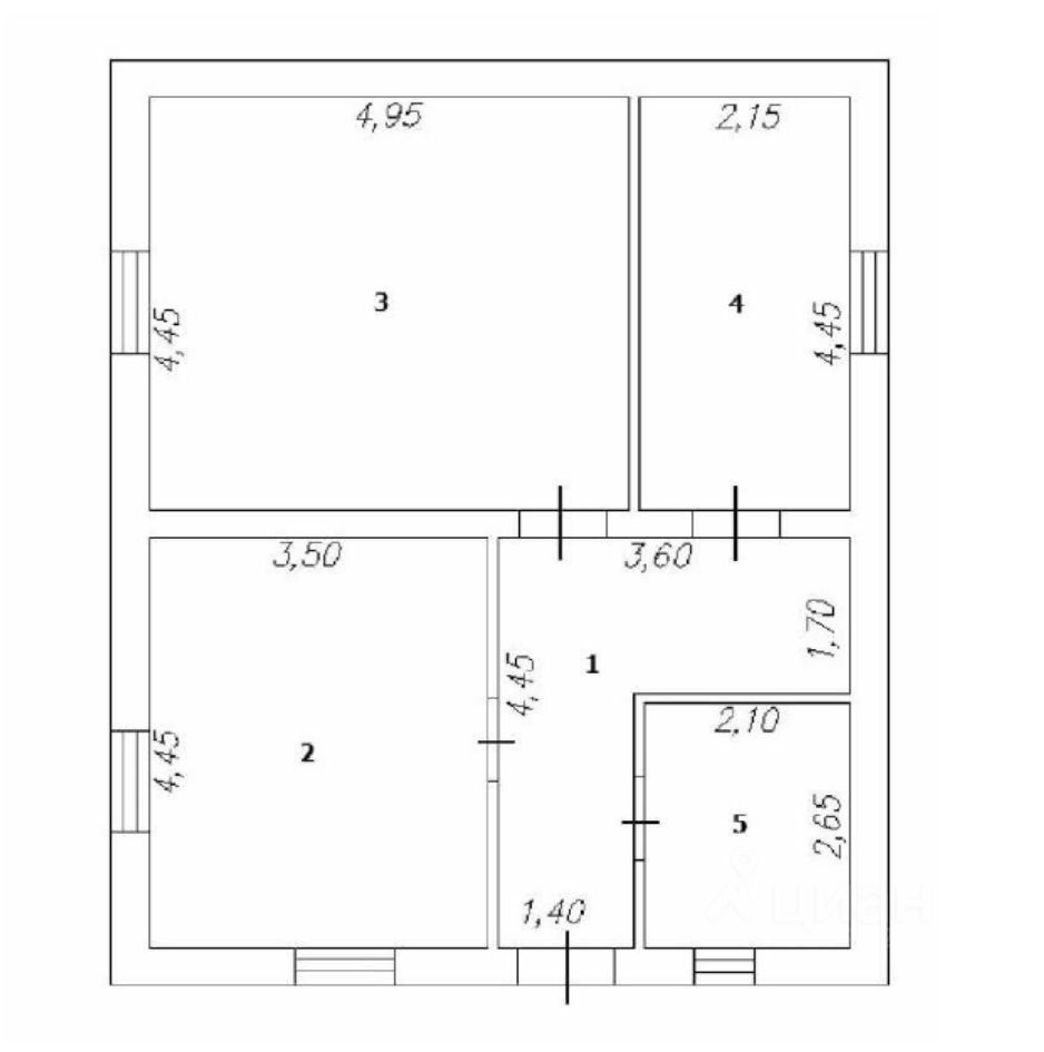
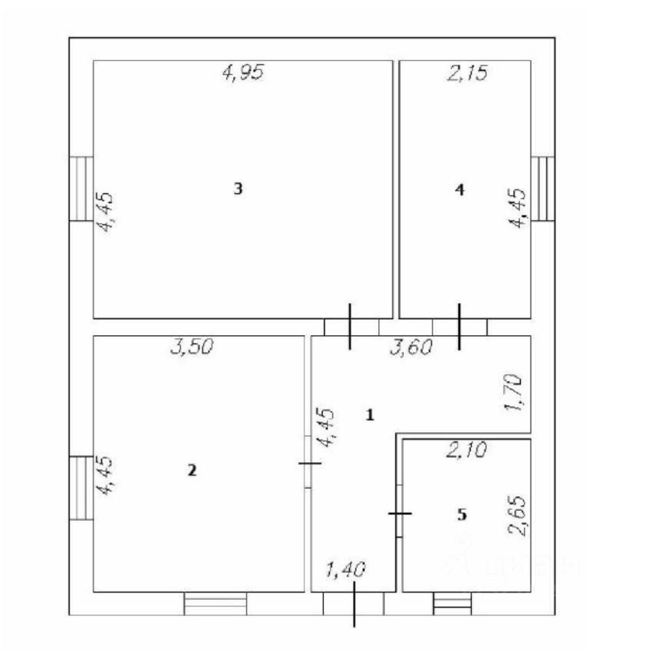
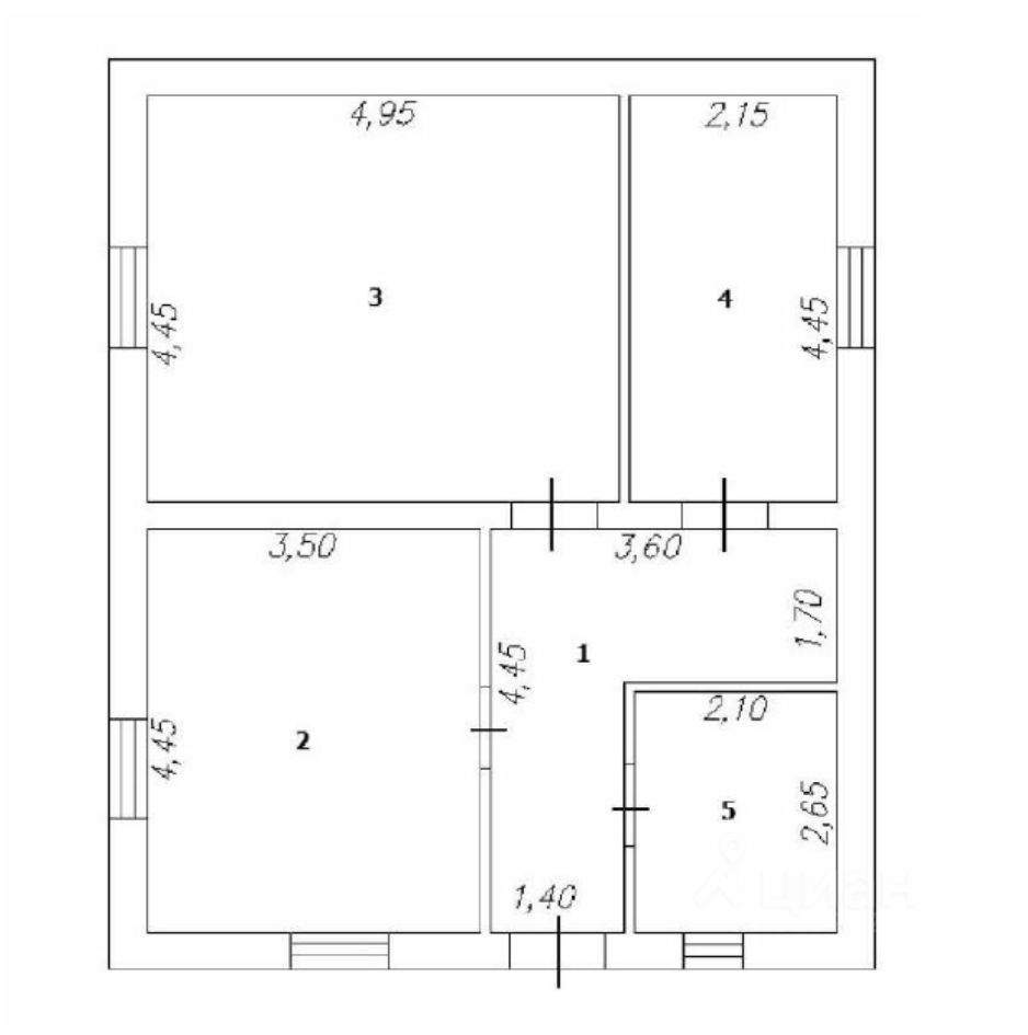
Этажей1
Площадь участка5 соток
Общая площадь66,5 м2
ЭлектричествоЕсть
Газоснабжениецентральное
Продаётся крепкий отдельностоящий дом , на надежном свайно-ростверковом фундаменте , из плотных крепких блоков с фасадной штукатуркой, внутри предчистовая отделка. Крыша качественно утеплена, покрытие мягкая черепица. Участок ровной формы, дом построен по центру . Удобная планировка, санузел с окном, есть разводка труб по всему дому, большая кухня- гостиная, спальня с двумя окнами , вторая комната на противоположной стороне. Отведено большое место для гардеробной. В доме установлены пластиковые окна с тройным стеклопакетом с внешней ламинацией. Надежная входная дверь, не требующая замены. Электричество со столба рядом с домом, есть септик, газ проходит по границе участка, водоснабжение за счет скважины.
Продаётся крепкий отдельностоящий дом , на надежном свайно-ростверковом фундаменте , из плотных крепких блоков с фасадной штукатуркой, внутри предчистовая отделка. Крыша качественно утеплена, покрытие мягкая черепица. Участок ровной формы, дом построен по центру . Удобная планировка, санузел с окном, есть разводка труб по всему дому, большая кухня- гостиная, спальня с двумя окнами , вторая комната на противоположной стороне. Отведено большое место для гардеробной. В доме установлены пластиковые окна с тройным стеклопакетом с внешней ламинацией. Надежная входная дверь, не требующая замены. Электричество со столба рядом с домом, есть септик, газ проходит по границе участка, водоснабжение за счет скважины. В пешей доступности 2 детских сада , школа, магазины, супермаркеты, пункты WB, Ozon, Яндекс. До остановки общественного транспорта 15 минут ходьбы . Рядом лес, пруд , посёлок активно застраивается. Дом расположен перед поворотом на соседнюю улицу , соседи только с двух сторон, перед домом много свободного места, широкая дорога. Обременение ипотека.