2-к, Новомедвенский проезд, 6а Показать на карте
Тула
ЖК ''ВЕРДИ'' - современный уютный малоквартирный дом.Жизнь на природе с городским комфортом. Всего 99 квартир! Идеальный вариант для тех, кто ценит уединение и тишину, но не готов отказываться от благ цивилизации.Комплекс расположен в одном из самых благоприятных для жизни районов города в 15 минутах от центра. В пешей доступности есть все необходимое: от супермаркетов до школ и детских садов.Современный дом комфорт-класса это — авторская архитектура, современные входные группы с местами для хранения колясок и велосипедов, закрытая территория двора, круглосуточное видеонаблюдение, современные детские площадки и зоны для занятий спортом, инновационные ресурсосберегающие технологии и качественная отделка.Отделка WHITE BOX в подарок! Во всех квартирах выполнены:высококачественная стяжка пола с дополнительной шумоизоляцией,улучшенная штукатурка стен цементно-песчаными раствором,шпаклевка стен в один слой,разводка электрических сетей с установкой розеток и выключателей,горизонтальная система разводки отопления с установкой качественных радиаторов с регулировкой тепла,установка энергосберегающих стеклопакетов,установка подоконников,установка системы приточной вентиляции в каждой комнате,установка системы противопожарной безопасности,установка входной утепленной стальной двери с двумя замками.Рядом с комплексом большая зеленая зона ''Щегловская засека'', которая идеально подходит для любителей пешеходных прогулок, бега, лыжного и велоспорта, отдыха и пикников.
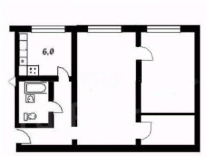
61 м2
6 / 10 этаж
Кирпич
- Показать контакты
- Добавить в избранное
61 м2
6 / 10 этаж
Кирпич
8 451 300
138 478 /м2
Новостройка,
дом сдан
дом сдан
